【SOLD OUT】オーベル横浜・戸部本町
【DULTON COLLABOREATION】 DULTON家具雑貨及び造作ダイニングテーブル・造作TVボード・造作リビングテーブル・造作カップボード等100万円相当プレゼント!
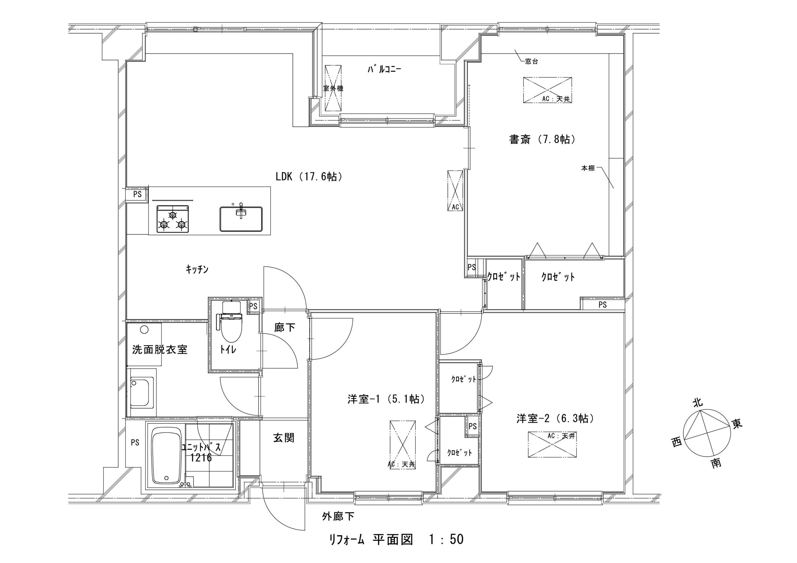
【最上階非分譲 特別な住空間】 非分譲住戸の為、78.28㎡と他住戸よりゆとりのある住空間。天井高が2.6m~2.8m超と非常に高く開放感があり、リビング・書斎からはランドマークタワーを望む素晴らしい眺望のプレミアムな住戸です。2面採光の為、午前はリビング面に陽が燦燦と差し込み午後は寝室にポカポカ陽が入ります。贅沢な眺望を前に、休日はサティでも聞きながら、お気に入りの靴を磨いたり趣味の作業をしたりお仕事をしたり♪と多目的な書斎兼ワークスペースを設けるプランニングとなります。
横浜市西区戸部本町に在るオーベル横浜戸部本町は、京急本線の戸部駅から徒歩1分と駅からの近さが魅力です。1995年5月に竣工したオーベル横浜戸部本町は、事業主が有楽土地株式会社、および施工が大成建設株式会社他により建設されました。オーベル横浜戸部本町は東向きと西向きに住戸が配置され総戸数は78戸で、間取りは50.13㎡~56.65㎡の1LDK~3DKとシングルやDINKS向けのプランニングです。外観はアーチ型のスカイラインが特徴的な9階建てのタイル貼りで、エントランスにはオートロック、宅配ロッカーが設置され、住戸にはTVモニター付きインターホン、CATV、浴室暖房換気乾燥機などが設置されています。また1階~2階の一部はローソン・藍屋・事務所・クリニックとなっています。周辺は小学校、中学校、戸部公園、区役所が至近で、商業施設や利便施設が集積するビックターミナル横浜駅も生活圏です。
間取り図
リノベーション内容
令和3年6月上旬完成
・間取り変更
・天井解体 天井高UP(リビング2.8㍍超・洋間2.6㍍超)
・WOOD ONEペニンシュラキッチン(食洗機付)
・キッチン天井(木毛セメント板造作仕上げ)
・オーク無垢材造作カップボード
・ユニットバス交換(サイズUP1216→1317 追焚機能付)
・涼乾暖房換気扇設置
・洗面台造作、シャワー水栓
・防水パン、洗濯水栓器具交換
・トイレ交換(フルオート)
・オーク無垢フローリング・パーケットフローリング 2重床下地交換
・建具全交換(ACE DOOR等)
・リビング、書斎仕切り壁デコマド設置
・クロス全張替
・タイル左官工事(キャンプディーゼルタイル)
・一部給排水管交換
・スイッチ/コンセントパネル交換(寝室調光リモコン式)
・エアコン3台マルチ交換
・ライティングレール/ダウンライト/シーリングファンライト/ペンダントランプ
・書斎造作本棚・カウンター造作
・下駄箱交換
・玄関土間モルタル左官仕上げ
・窓枠、窓台、玄関枠交換
・木幅木交換
・玄関ドア表層張り替え
物件概要
- 所在地
- 横浜市西区戸部本町49-15
- 交通
- 京浜急行本線「戸部駅」徒歩1分/東海道本線「横浜駅」徒歩13分/市営地下鉄「高島町駅」徒歩5分
- 間取り
- 3LDK
- 専有面積
- 78.29㎡
- バルコニー面積
- 約3.5㎡
- 所在階
- 9階
- 構造・規模
- 鉄骨鉄筋コンクリート造9階建地下1階
- 総戸数
- 80戸
- 土地権利
- 敷地権
- 用途地域
- 商業地域
- 管理費
- 20,490円
- 修繕積立金
- 17,100円
- 駐車場
- あり 月額28,500円(機械式)
- 駐輪場
- あり 月額500円
- 管理形態
- 全部委託(日勤)
- 管理会社
- 大成有楽不動産株式会社
- 施工会社
- 大成建設株式会社
- 分譲会社
- 大成有楽不動産株式会社
- 引き渡し時期
- 即可
- ペット飼育
- 可(管理規約に基づく)
- 事務所利用
- 可
- 取引形態
- 売主
- 備考
- オートロック・宅配ボックス・EV1基・フラット35S対応・司法書士弊社指定 ※既存住宅売買瑕疵保険売主にて加入(住宅ローン減税、すまいの給付金・贈与税非課税対象物件)

