【SOLD OUT】ライオンズマンション野毛山公園南
【DULTON collaboration!!】 DULTON家具雑貨+造作家具80万円相当プレゼント!
SINPLE×AMERICAN
グレーとウッドをメインとした内装に、遊び心のあるアイテムでインテリアの彩度が加わり空間に動きを。
アメリカンスタイルながらもゆったりと寛げる空間に仕上がりました♪
長い時を過ごすことになるお部屋だからこそ真心を込めて空気感・素材感・居住性等にこだわり仕上げております。
素材感にこだわった内装はオーク無垢フローリング(15㎜厚)オーク無垢で仕上げたキッチン。ビルトインコンロはハーマン+DO、家庭用ガスコンロ最高火力!厨房の雰囲気漂う全面ゴトクの本格派です♪専用ダッチオーブンも付属しておりますので休日は手の込んだ料理で楽しいおうち時間をお過ごしいただけます♪塗装仕上げのリビングドア、焼き上げられたタイル、素地研磨したコンクリート壁面など低コストな~風、~調や表装だけ貼り付けたものではなくすべて本物です。それらの素材は時の経過を経て美化していく様に愛着が増していく事でしょう。本物だけが持つ素材感・存在感を是非現地で見て触れてご確認下さい♪
9階南西角部屋のお部屋はどのお部屋にも大きな開口ががあり日中はぽかぽか暖かい陽光が入りリビングでは日中暖房が不要なほど暖かいです♪眺望もある程度抜けており春先には眼下の大岡川の桜が見下ろせます。
建物周辺環境は将来にわたり「子供たちが夢や希望を持てるような、明るく、住みやすいまちづくり」
【初黄・日ノ出町地区街づくり協議地区】により街の賑わいやマンションの適正な居住水準の誘導などに取り組まれている地区です。
具体的には風紀を害すると思われる用途の禁止。1住戸の規模を30㎡超とし、ワンルーム形式は避けファミリータイプとする制限がある地域の為、お子様がいるご家族も安心してお住まいいただける地域です。
京急本線「黄金町駅」徒歩4分「日ノ出町駅」徒歩6分「桜木町駅」徒歩15分とみなとみらいも生活圏です。
マンション1階にはスーパー(営業時間7:00~24:00)もあり快適な生活が待っております。
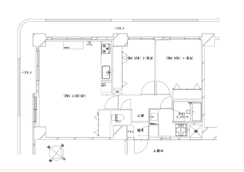
間取り図
 
                
                          リノベーション内容
2022年2月中旬完成 フルリノベーション ・オーク無垢システムキッチン(浄水機能・食洗機付・ハーマンガスコンロ) ・洗面台造作 ・トイレ交換 ・ユニットバス交換(1216→1416へサイズUP) ・給湯器交換 追焚機能付 ・建具全交換 ACE DOOR等 ・オーク無垢フローリング交換 2重床交換 ・クロス張り替え/一部タイル仕上げ・モルタル左官仕上げ ・照明ダクトレール、レセップ、ダウンライト等 ・スイッチコンセントパネル交換 ・玄関土間モルタル左官仕上げ ・玄関ドア表装張り替え(専有部)
物件概要
- 所在地
- 横浜市中区初音町1-2-9
- 交通
- 京浜急行本線【日ノ出町駅】徒歩6分【黄金町駅】徒歩4分・根岸線【桜木町駅】徒歩13分
- 間取り
- 2LDK(3LDKOP対応可)
- 専有面積
- 62.67㎡
- バルコニー面積
- 19.19㎡
- 所在階
- 9階
- 構造・規模
- 鉄骨鉄筋コンクリート造地上10階建て
- 総戸数
- 49戸
- 土地権利
- 敷地権
- 用途地域
- 商業地域
- 管理費
- 20,600円
- 修繕積立金
- 15,450円
- 駐車場
- 有 空無 月額18,000円
- 駐輪場
- フリー区画
- バイク置場
- 有 空無
- 管理形態
- 全部委託(日勤)
- 管理会社
- (株)大京アステージ
- 施工会社
- 東亜建設工業(株)
- 分譲会社
- (株)大京
- 引き渡し時期
- 相談
- ペット飼育
- 不可
- 事務所利用
- 不可
- 取引形態
- 売主
- 備考
- オートロック・EV1基・フラット35S対応・既存住宅瑕疵保険売主にて加入予定・住宅ローン減税・すまいの給付金・贈与税非課税対象物件

 
                   
                   
                   
                   
                   
                   
                   
                   
                   
                   
                   
                   
                   
                   
                   
                   
                   
                   
                     
                     
                     
                     
                     
                     
                     
                     
                     
                     
                     
                     
                     
                     
                     
                     
                     
                    