仲町台パークヒルズ7号棟805号室
38㎡超の開放的なルーフバルコニーが気持ちよい住戸です。
駅までは四季を感じられる緑道「せきれいのみち」を歩き車道を通らずアクセス可能です。
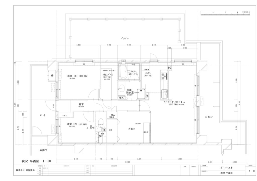
間取り図
リノベーション内容
2025年4月フルリノベーション完成予定
・システムキッチン(フロートタイプ食洗機付)
・洗面台造作
・トイレ交換
・UB交換 1317→1418へサイズUP
・給湯器交換
・建具全交換、室内窓設置
・オーク無垢フローリング
・クロス貼り替え、一部タイル左官、リビング壁・天井モルタル左官仕上げ
・照明ダクトレール、レセップ、ダウンライト
・スイッチ・コンセントパネル交換
物件概要
- 所在地
- 横浜市都筑区早渕1-2-7
- 交通
- 横浜市営地下鉄「仲町台駅」徒歩16分
- 間取り
- 3LDK
- 専有面積
- 79.11㎡(壁心)
- バルコニー面積
- 17.00㎡
- ルーフバルコニー面積
- 38.05㎡
- 所在階
- 8階
- 構造・規模
- 鉄筋コンクリート造地上10階建8階部分
- 総戸数
- 184戸
- 土地権利
- 所有権
- 用途地域
- 準住居地域
- 管理費
- 17,400円
- 修繕積立金
- 20,970円
- その他費用
- 2,150円
- 駐車場
- 空きあり 月額6,000~12,000円
- 駐輪場
- 有 月額100円
- バイク置場
- 有 月額600円
- 管理形態
- 全部委託(日勤)
- 管理会社
- 東急コミュニティ
- 施工会社
- 戸田建設株式会社
- 分譲会社
- 株式会社日鉄ライフ
- 引き渡し時期
- 2025年5月以降
- ペット飼育
- 可(管理規約による制限有り)
- 事務所利用
- 不可
- 取引形態
- 売主
- 備考
- オートロック、宅配ボックス、エレベーターあり

